
En Avril dernier, l’agence d’architecture AdNova en partenariat avec BEDesign vous proposaient de participer à une toute nouvelle rubrique nommée : Help Me.
Une idée simple, vous permettre de faire intervenir un architecte (agence) directement chez vous et le tout gratuitement dans le cadre du lancement d’une offre 100% internet initiée par l’agence.
Des participations, des réactions, des partages (record sur BEDesign), un projet sélectionné (Celui de Nicolas), et maintenant voici le projet finalisé, modélisé !





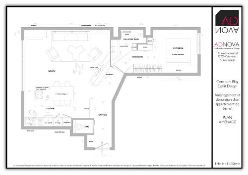
AdNova à poussé le ré-aménagement au plus loin en proposant de modifier l’ensemble de l’appartement et non pas seulement le salon. Une métamorphose complète; il est presque difficile de s’imaginer comment cela était avant.
Pour cela, voici les plans avec les modifications :




Une petite sélection d’objets déco pour agrémenter le tout :


Et avant, c’était comment ?

//Une petite référence à BEDesign a été introduite sur l’une des planches…
Qu’en pensez-vous ? Moi je dis, beau boulot !
Articles précédents du concours Help Me : Présentation du concept, Le Projet sélectionné
Un grand merci à l’agence AdNova pour sa gentillesse, sa disponibilité…
By Blog Esprit Design
