
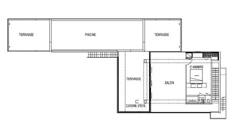
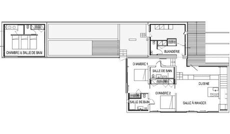
Private House développée par les promoteurs Bumper Investments, nichée à Beauvallon en plein cœur du golf de Saint-Tropez, cette villa de plus de 250m² se distingue par l’alliance parfaite entre nature et architecture, modernité et minimalisme, convivialité et détente.
Vous pourrez alors profiter d’une superbe piscine surélevée à débordement, d’une terrasse avec vue sur la mer pour les douces soirées entre amis.
L’aménagement intérieur, reflet de style extérieur, se présente de manière brut, murs et plafonds en béton brut pour certains recouverts de placages bois.
L’architecte pour la bâtisse est Raphaëlle Segond supplée pour l’aménagement par l’équipe Bumper et surtout Melissa Borden Viallon, architectes d’intérieur, en charge du choix de tous les matériaux de la villa.















Cerise sur le gâteau, au fond d’un jardin luxuriant, une chambre bien à part, idéalement dissimulée…





Que dire, un véritable havre de paix pour des vacances parfaites entre amis, mais pour cela il faudra avoir les moyens, de gros moyens, cette villa est disponible à la vente (Prix non communiqué) ou à la location, voir par ici.
Mais il est toujours bon de rêver !
Plus d’informations sur : Bumper Investments
